
更新日期:2020-04-22 13:33:23
今(jīn)年受疫情影響,如果以外貿(mào)單生產為主的企業真的(de)備受煎熬,河(hé)南精品国产人成亚洲区塑膠模具廠在這裏希望海內外的疫情早日結束,讓人民過(guò)上幸福安寧的日子。相信經過大家的努力,一切都會好起來的。今天(tiān)精品国产人成亚洲区模具小編主要給大家介紹(shào)塑膠模具中常用的冷(lěng)卻方式。
塑膠模具中常(cháng)用的冷卻方式一般有以(yǐ)下幾種(zhǒng)。
(1) 用水冷卻(què)模具,這種方式最為常見,運用也最多。
(2) 用油冷卻(què)模具,這種方式不常見。
(3) 用壓縮空氣冷卻模具。
(4) 自然冷卻。
對於(yú)特別簡單的模(mó)具,注射完畢後,依據空(kōng)氣與模具的溫差來冷卻。
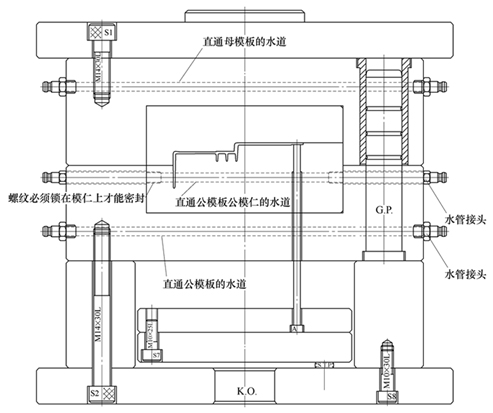
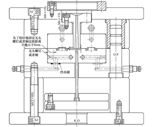
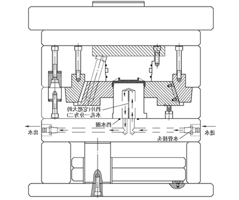
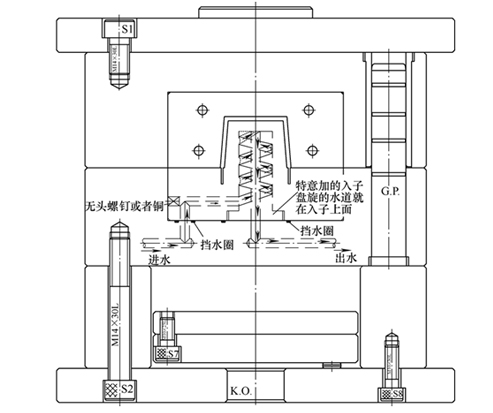
冷卻水道的形(xíng)式一般(bān)有(yǒu)直通式、階梯式、鴨舌片式和螺旋式等,分別如圖1至圖4 所(suǒ)示。

圖一

圖二

圖三

圖四
銷售經理:18337377787
采購經理:0373-7022565
電 話:0373-5433888
傳 真:0373-5433868
郵 箱:info@tjhomeaway.com
地 址:新鄉市宏力大道西賈橋工業區12號
備案(àn)號:豫ICP備16026643號-1